您好,欢迎进入xk星空体育直播平台官方网站!

与时俱进,诚赢客户

龙门吊、提梁机、星空体育官方账号生产厂家

服务电话:13782575673

技术资料

您现在所在位置:首页>>技术资料>>5吨L型电动葫芦星空体育官方账号性能参数

5吨L型电动葫芦星空体育官方账号性能参数

本文链接://m.xlhydra.com/jszc/1358.html   发布时间:2022-01-21 10:49:31  点击量:1796

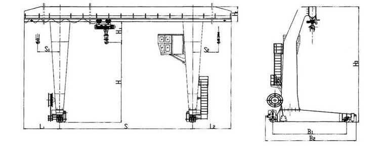
  L型电动葫芦星空体育官方账号就是指以电动葫芦胡芦做为起吊组织的L型单承重梁起重机,与基本MH型起重机不一样的是其支脚样子像英文字母L,故得其名。我为各位详细介绍下5吨L型电动葫芦起重机性能参数。

  L型电葫芦星空体育官方账号结构图

L型电葫芦星空体育官方账号结构图

  L型电葫芦星空体育官方账号性能参数图

L型电葫芦星空体育官方账号结构图

文章聚合页面: L型 起重机参数 起重机结构

技术资料

联系我们

CONTACT US

联系人:徐经理

手机:13782575673

电话:0373-8611375

邮箱:hnzyaqqz@126.com

官网:m.xlhydra.com

地址:河南长垣起重工业园区华豫大道中段

Baidu
map