您好,欢迎进入xk星空体育直播平台官方网站!

与时俱进,诚赢客户

龙门吊、提梁机、星空体育官方账号生产厂家

服务电话:13782575673

星空体育官方账号

您现在所在位置:首页>>xk星空体育官网登录>>xk星空体育登录>>MHZ型电动葫芦抓斗星空体育官方账号

MHZ型电动葫芦抓斗星空体育官方账号

本文链接://m.xlhydra.com/msqzj/1326.html   发布时间:2022-01-20 10:46:09  点击量:4851

  MHZ型电动葫芦抓斗星空体育官方账号产品简介

  MHZ型电动葫芦抓斗星空体育官方账号与CD型电葫芦及抓斗起重机配套设施应用,是一种有轨运作的中小型吊车,适用吊重5-10吨,适用跨距12-30米,办公环境-20℃-40℃中间。本商品为一般主要用途xk星空体育官网登录,多用以户外场地及库房的装卸搬运或爬取原材料,本商品有路面控制和房间内控制二种形式。

MHZ型电动葫芦抓斗星空体育官方账号

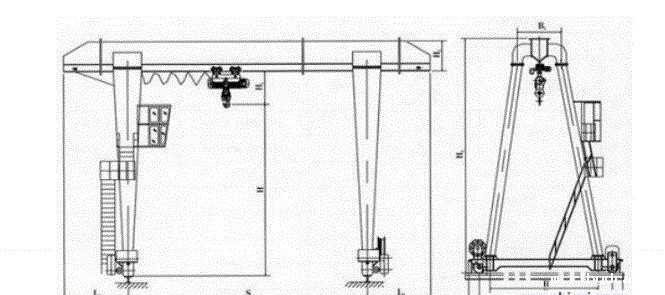
  MHZ型电动葫芦抓斗星空体育官方账号结构图

MHZ型电动葫芦抓斗星空体育官方账号结构图

  MHZ型电动葫芦抓斗星空体育官方账号参数图

MHZ型电动葫芦抓斗星空体育官方账号参数图

文章聚合页面: MHZ型 电动葫芦 星空体育官方账号

联系我们

CONTACT US

联系人:徐经理

手机:13782575673

电话:0373-8611375

邮箱:hnzyaqqz@126.com

官网:m.xlhydra.com

地址:河南长垣起重工业园区华豫大道中段

Baidu
map