您好,欢迎进入xk星空体育直播平台官方网站!

与时俱进,诚赢客户

龙门吊、提梁机、星空体育官方账号生产厂家

服务电话:13782575673

产品知识

您现在所在位置:首页>>起重资讯>>产品知识

预制场龙门吊起重机,龙门吊基础轨道设计

本文链接://m.xlhydra.com/hyxw/253.html   发布时间:2020-12-16 01:29:42  点击量:1200

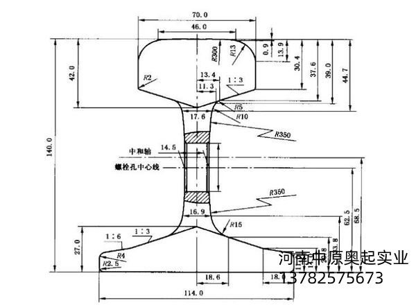
  龙门吊轨道尺寸如下图所示:

龙门吊轨道钢轨图

  基础采用C30混凝土进行浇筑,纵向每30m设一道沉降缝。龙门轨道应采用轨道夹片进行轨道钢的固定,禁止采用钢筋打弯固定轨道钢。龙门吊基础承载力大于134kpa。龙门起重机风险源管理
 

  汽车吊参数表:

汽车吊参数表
 

  以上就是关于预制场龙门吊起重机,龙门吊基础轨道设计的相关内容,如果想要了解更多相关内容,请持续关注我们。

  文章来源:m.xlhydra.com

文章聚合页面:

联系我们

CONTACT US

联系人:徐经理

手机:13782575673

电话:0373-8611375

邮箱:hnzyaqqz@126.com

官网:m.xlhydra.com

地址:河南长垣起重工业园区华豫大道中段

Baidu
map